


CJ123H多功能針型閥
CJ123H多功能針型閥是由內螺紋連接,適用于油﹑水﹑氣等多種非腐蝕性或腐蝕性介質,適用于-29℃~+440℃ -70℃~-240℃ ≤540℃ ≤570℃。比其他類型的閥門,多功能針型閥具有更好的密封性能和耐受壓力的能力,一般用于較小流量,較高壓力的氣體或者液體介質的密封,最合適與與壓力表配合。
| 產品名稱: | 多功能針型閥 | 產品型號: | CJ123H |
| 公稱通徑: | DN6 | 結構形式: | 多功能 |
| 公稱壓力: | 25.0MPa~32.0MPa | 連接方式: | 內螺紋 |
| 適用溫度: | -40ºC~+540ºC | 驅動方式: | 手動(一字形手柄或菊花形手輪) |
| 閥體材質: | 鑄鋼、不銹鋼 | 制造標準: | 國標GB、德國DIN、美國API、ANSI |
| 適用介質: | 水、油、蒸汽、空氣等氣體 | 生產廠家: | 上海凱利科閥門有限公司 |
| 型號 | 公稱壓力(MPa) | 試驗壓力(MPa) | 工作壓力(MPa) | 工作溫度(℃) | 適用介質 | ||
| 殼體 (MPa) | 密封 (液) | 密封 (氣) | |||||
| CJ123H-250-DN15 | 25.0 | 37.5 | 27.5 | 0.6 | 25.0 | P≤540℃ | 液化石油氣水、酸、蒸汽、油品等 |
| C≤425℃ | |||||||
|
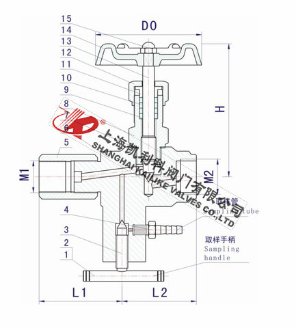
序號 NO. |
零件名稱 Part name |
材質 Material |
| 1 | 取樣手柄Sampling Handle | 20# A105 SS304 SS304L SS316 SS316L |
| 2 | 內六角螺釘Hexagon Screw | 20# A105 SS304 SS304L SS316 SS316L |
| 3 | 取樣閥桿Sampling Stem | 20# A105 SS304 SS304L SS316 SS316L |
| 4 | 取樣管 Sampling tube | 20# A105 SS304 SS304L SS316 SS316L |
| 5 | 螺紋套Wrap | 20# A105 SS304 SS304L SS316 SS316L |
| 6 | 閥體 Body | 20# A105 SS304 SS304L SS316 SS316L |
| 7 | 閥蓋墊片 Bonnet Gasket | 紫銅(Red copper) PTFE RTFE |
| 8 | 閥蓋Bonnet | 20# A105 SS304 SS304L SS316 SS316L |
| 9 | 填料墊 Packing Seat |
PTFE 柔性石墨(Expanded Graphite) 金屬盤根(Matel and Graphite) |
| 10 | 填料 Packing | PTFE 柔性石墨(Expanded Graphite) |
| 11 | 填料壓蓋 Packing Gland | 20# A105 SS304 SS304L SS316 SS316L |
| 12 | 鎖緊螺母 Lock Nut | 20# A105 SS304 SS304L SS316 SS316L |
| 13 | 閥桿 Stem | 20# A105 SS304 SS304L SS316 SS316L |
| 14 | 手輪 Handle | 20# A105 SS304 SS304L SS316 SS316L |
| 15 | 帶帽螺母 Hooded Nut | 20# A105 SS304 SS304L SS316 SS316L |
| 型號 |
公稱通徑 DN |
M1 | M2 | L1 | L2 | H | D0 |
| CJ123H-250 | DN6 | M20X1.5 | G1/2 | 54 | 46 | 93 | ø60 |
聲明:【CJ123H多功能針型閥】規格型號、結構尺寸由上海凱利科閥門有限公司提供,如何選擇適用的CJ123H多功能針型閥產品,使之在工藝控制中安全可靠、經濟適用,可致電我司銷售部門及技術部門,我們將在最短的時間內為您解答! |